6109 Houston Road, Macon, GA 31216

Property Description

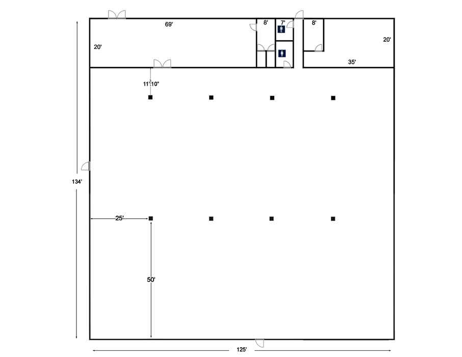
This 16,750 SF standalone retail building is now available for sale! Building includes a side drive-through/drop-off lane. Situated on 2.38 Acres, with ample paved parking on site. This property is currently occupied by Goodwill Industries, but available for an end user (lease would terminate with sale).

Location:
Located on Houston Road. Nearby businesses in the area include Ace Hardware, Fincher's BBQ, Texas Border Grill, Kumho Tires, CVS, Citgo, Exxon, Family Dollar, Food Depot, Subway, Pizza Hut, Amazon Fulfillment Center and Kohl’s Distribution Center.

Property Highlights

Fronts Houston Road
Excellent Visibility

Property Details

General

  • Property Name: 6109 Houston Road
  • Price: $1,800,000.00
  • Price Per SF: $107.46
  • Property Status: Active
  • Property Type: Retail
  • Sub Type: Free Standing Building
  • Property Use: Vacant Property
  • Class: SALE
  • County: Bibb
  • Zoning Description: PDC
  • Lot Size: 2.38 Acres

Building

  • Building Size: 16,750 SF
  • Unit Size: 16,750 SF
  • Year Built: 2008
  • Tenancy: SINGLE

Utilities

  • Utilities: ELECTRIC IS AVAILABLE

Land

  • Traffic Count: 10,000

Documents

Documents