1193 Wesleyan Drive, Macon, GA 31210

4 Spaces Available

800 SF  •  From $25.00 $/SF/Year  •  NNN

Property Description

Retail suites available at a new-construction convenience store/gas station in one of North Macon’s strongest retail corridors. The convenience anchor drives steady traffic, creating an ideal setting for service, food, and retail users that benefit from quick-stop visits & repeat customers.

Positioned in North Macon’s primary trade area, site benefits from strong household density and retail traffic patterns with quick access to the area’s major shopping, grocery anchors, & restaurant corridors. At the corner of Wesleyan Drive and Northside Drive.

Neighbors and nearby businesses include Springdale Elementary School, Northside Prep Learning Center, The Madison Studio - Dance Education, Advanced Dental Arts, Food Depot, Family Dollar, CVS, Advance Auto Parts, OrthoGeorgia, Kroger, Cold Stone Creamery, Culver’s, Panera Bread, IHOP, Chick-fil-A, Starbucks, Dunkin’, Planet Fitness, Urban Air Trampoline Park, and many more retail, shopping, and restaurant establishments.

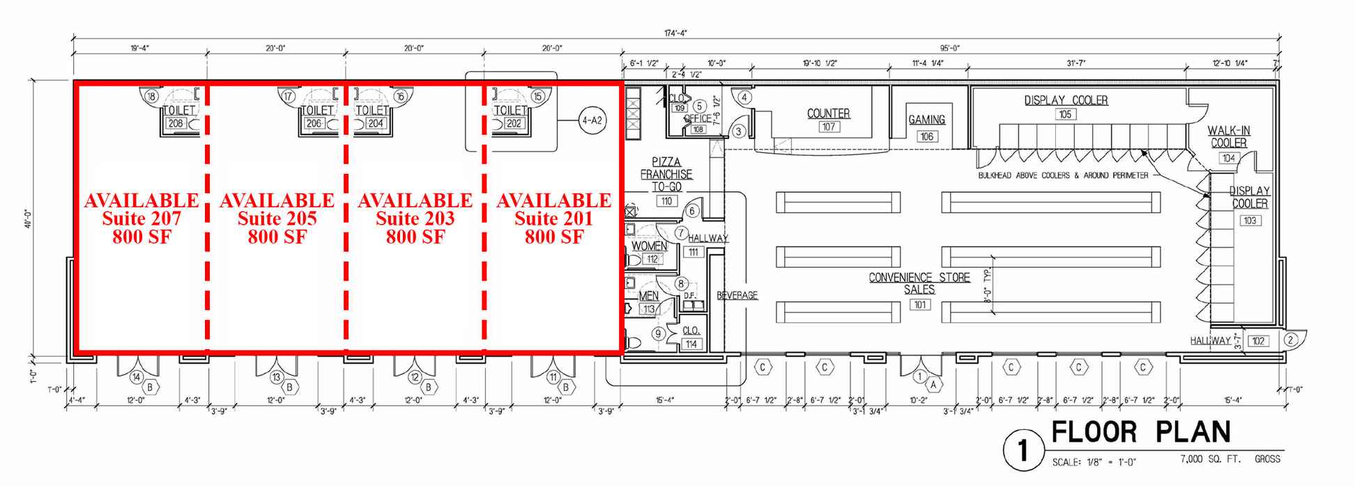
Space Details:
Four 800 SF suites are available, and can be combined for a maximum contiguous space of up to 3,200 SF. Ideal for coffee/QSR, dessert/ice cream, salon/barber, nail spa, cellular, boutique fitness, medical/urgent service, insurance, specialty retail, and other neighborhood-serving concepts.

Property Highlights

New construction convenience store/gas station
Convenience store anchor
Excellent visibility intersection
High household density
Strong morning & afternoon traffic counts due to school proximity
Ideal for quick-stop food/service/retail users

Property Details

General

  • Property Name: Wesleyan Drive 1193
  • Monthly Rent: $25.00 $/SF/Year
  • Property Status: Active
  • Property Type: Retail
  • Sub Type: Storefront/Office
  • Class: LEASE
  • Lease Type: NNN
  • County: Bibb
  • Zoning Description: C-5
  • Lot Size: 2.00 Acres

Building

  • Building Size: 7,000 SF
  • Space Available: 3200 SF
  • Gross Leasable Area: 3,600 SF
  • Year Built: 2026
  • Construction Status: Existing

Land

  • Traffic Count: 8,060

Documents

Available Spaces

Suite 201

Available
Size 800 SF
Rate $25.00 $/SF/Year
Lease Type NNN
Min Divisible 800 SF
Max Contiguous 3,200 SF
Inline suite, can be combined with Suites 203, 205, & 207 for maximum contiguous 3,200 SF.

Suite 203

Available
Size 800 SF
Rate $25.00 $/SF/Year
Lease Type NNN
Min Divisible 800 SF
Max Contiguous 3,200 SF
Inline suite, can be combined with Suites 201, 205, & 207 for maximum contiguous 3,200 SF.

Suite 205

Available
Size 800 SF
Rate $25.00 $/SF/Year
Lease Type NNN
Min Divisible 800 SF
Max Contiguous 3,200 SF
Inline suite, can be combined with Suites 201, 203, & 207 for maximum contiguous 3,200 SF.

Suite 207

Available
Size 800 SF
Rate $25.00 $/SF/Year
Lease Type NNN
Min Divisible 800 SF
Max Contiguous 3,200 SF
Endcap suite, can be combined with Suites 201, 203, & 205 for maximum contiguous 3,200 SF.

Documents