3071 Broadway, Macon, GA 31206

Property Description

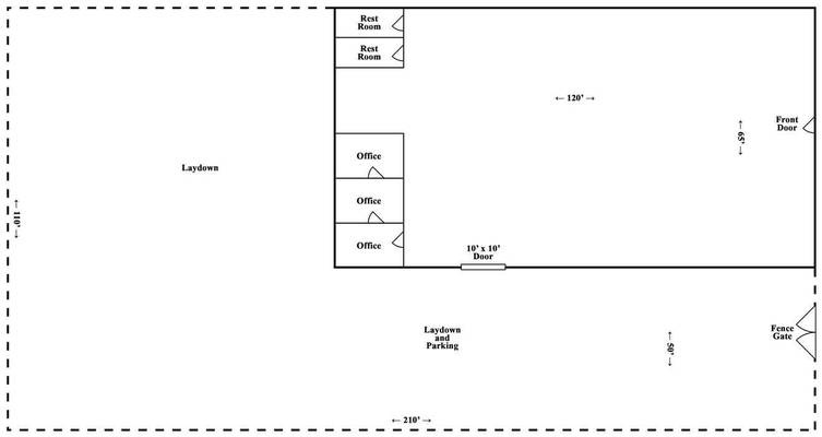
Property was formerly Rosson Sign. Warehouse area is 7,000 SF and office area is 845 SF for a total of 7,845 SF. Three phase power to site. Ceiling height is 11’ to metal beams (actual ceiling heights: 18’ center, 12’ eaves). Warehouse area includes one 10’ x 10’ road grade door. Roof is 2 years old. Offices have air conditioning, and warehouse has two unit heaters heating the entire warehouse space.

Location:
This warehouse is located in a great industrial corridor in Macon, with great neighbors. Corridor is located close to Highway 80 (Eisenhower Parkway) and I-75 to the north and Highway 247 to the south. Also convenient to downtown Macon. Neighboring businesses include Olivers Auto & Truck Repair, Rush Truck Centers, Cassidy Machine Shop & Engine, Siding Supply Inc, and Fleet Pride Walthall, as well as many other light industrial businesses.

Property Highlights

3 Phase power to site
Fenced laydown yard
Located in a great industrial corridor
Easy access to I-75
Roof is 2 years old
Convenient to Downtown Macon

Property Details

General

  • Property Name: 3071 Broadway
  • Price: $399,000.00
  • Property Status: Active
  • Property Type: Industrial
  • Sub Type: Warehouse
  • Property Use: Vacant Property
  • Class: SALE
  • County: Bibb
  • Zoning Description: M-1
  • Lot Size: 0.69 Acres

Building

  • Building Size: 7,845 SF
  • Year Built: 1946
  • Tenancy: SINGLE

Utilities

  • Utilities: FENCED YARD, ELECTRIC IS AVAILABLE

Documents

Documents