3627 Mercer University Drive, Macon, GA 31204

Property Description

Property sits on a 0.78 Acre lot and has ample parking (36 spaces). Great visibility on Mercer University Drive. Also available for sale.

Location:
Located on Mercer University Drive, just minutes away from the Atrium Health Amphitheatre and The Macon Mall. Other surrounding neighbors include Ollie’s Bargain Outlet, Rack Room Shoes, Cato, Foot Locker, Pizza Hut, No Name Chicken, Burger King, Ken’s Stereo Macon, Capital City Bank, Title Max, Loan Max, and many more restaurants, retailers, and businesses.

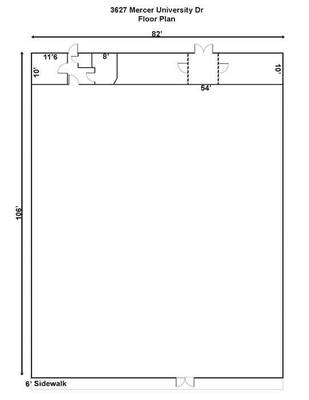
Space Details:
8,692 SF freestanding retail building available. Mostly open floorplan allows for easy modification for a variety of uses.

Property Highlights

Freestanding Retail Building
Great Visibility
Also For Sale

Property Details

General

  • Property Name: 3627 Mercer University Drive
  • Monthly Rent: $9.00 $/SF/Year
  • Property Status: Active
  • Property Type: Retail
  • Sub Type: Free Standing Building
  • Class: LEASE
  • Lease Type: Modified Gross
  • County: Bibb
  • Zoning Description: C-2
  • Lot Size: 0.78 Acres

Building

  • Building Size: 8,692 SF
  • Gross Leasable Area: 8,692 SF
  • Year Built: 1984
  • Construction Status: Existing

Utilities

  • Utilities: HEATING AVAILABLE, COOLING AVAILABLE, LIGHTING AVAILABLE

Land

  • Traffic Count: 33,150

Documents

Documents