1693 Bass Road, Macon, GA 31210

Property Description

Less than 1.5 miles from the Shoppes at River Crossing, 1 mile from Bass Pro Shops & Distribution Center, and minutes of over 500,000 SF of Class A and B office space. Strategically located in a densely populated area with approximately 52,000 households within a 10-mile radius.

Location: Neighboring businesses include McDonald’s, Chicken Salad Chick, Surcheros, Georgia Farm Bureau Headquarters, Zaxby’s, J. Christopher’s, 7 Brew, Tenmii Japanese Eatery, MidSouth Community Credit Union, Heart of Gypsy Boutique, and many more.

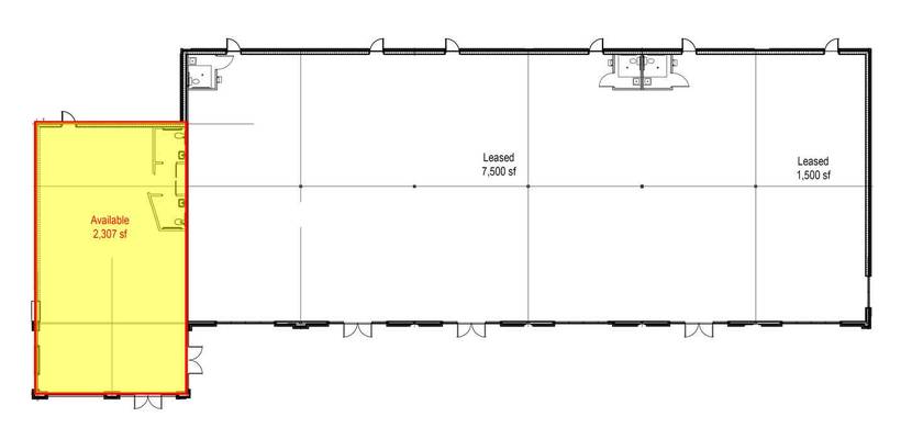
Space Details: This turnkey restaurant space is available for lease. Includes FF& E. Excellent visibility and access to Bass Road. Signalized intersection at Bass Road, Starcadia Circle, and Bass Pro Blvd. Located in desirable North Macon, on outparcel property to North Macon Plaza, a 151,987 SF regional retail center.

Property Highlights

Turnkey restaurant space
2nd Generation restaurant
High traffic area

Property Details

General

  • Property Name: 1693 Bass Road
  • Monthly Rent: $40.00 $/SF/Year
  • Property Status: Active
  • Property Type: RETAIL
  • Sub Type: RESTAURANT
  • Class: LEASE
  • Lease Type: NNN
  • Date Available: October 29, 2025
  • County: Bibb
  • Zoning Description: C-4

Building

  • Space Available: 2307 SF

Land

  • Traffic Count: 42,100