123 Sparta Highway, Eatonton, GA 31024

Property Description

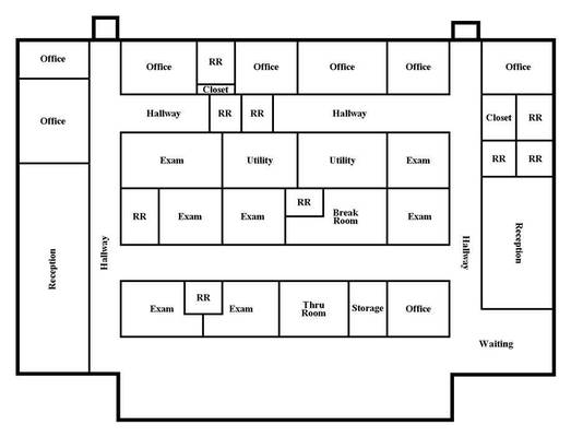
This 6,115 SF medical building is now available for sale! Excellent visibility with monument signage on Sparta Highway. Property main floor has 5,540 SF, and has reception areas, waiting area, eight (8) offices, seven (7) exam rooms, nine (9) restrooms, two (2) utility rooms, break room, storage room, and closet. The basement area has 575 SF of space. Ideal for use as medical office, professional office, and any other business use.

Location:
Situated on Sparta Highway, approximately 1 mile from Downtown Eatonton. Nearby businesses include the Putnam General Hospital, Eatonton Health & Rehabilitation, Putnam Pediatrics, Central GA Kidney Specialist, Young-Jones Dental Center, Eatonton Pediatrics, and Putnam County Middle School.

Property Highlights

Great visibility
Monument signage

Property Details

General

  • Property Name: 123 Sparta Highway
  • Price: $649,000.00
  • Property Status: Active
  • Property Type: Office
  • Sub Type: Medical
  • Property Use: Vacant Property
  • Class: SALE
  • County: Putnam
  • Zoning Description: C-2
  • Lot Size: 1.00 Acres

Building

  • Building Size: 6,115 SF
  • Tenancy: SINGLE

Utilities

  • Utilities: ELECTRIC IS AVAILABLE

Land

  • Traffic Count: 9,080

Documents

Documents