121 Sparta Highway, Eatonton, GA 31024

Property Description

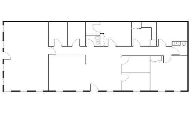
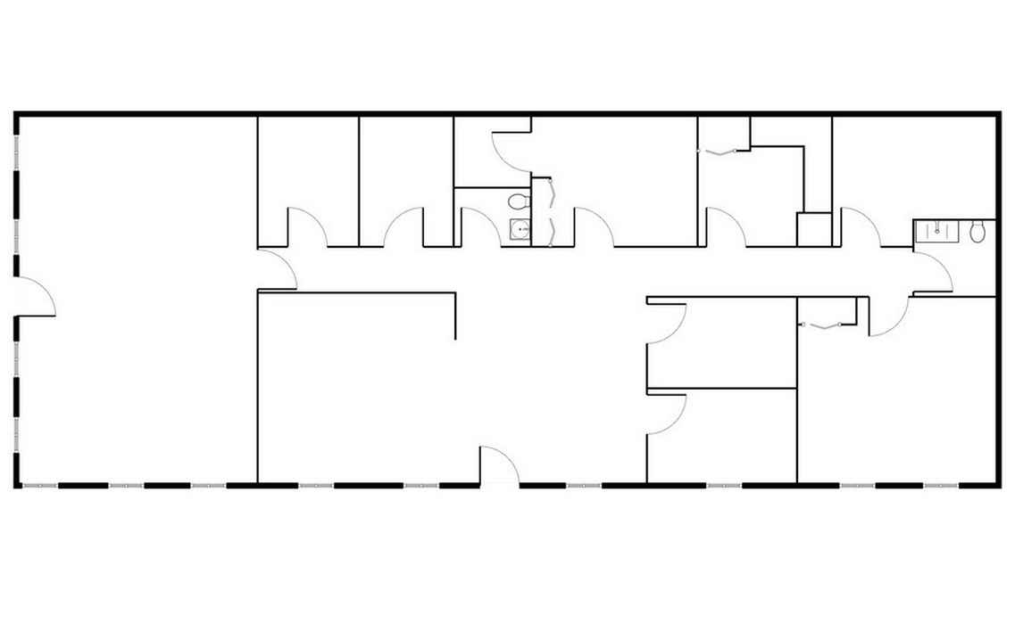
This 2,560 SF medical building is now available for lease! Excellent visibility with monument signage on Sparta Highway. Located directly behind 123 Sparta Highway. With multiple offices, two (2) rest rooms, and kitchen, this building is ideal for use as medical office, professional office, and any other business use.

Location:
Situated on Sparta Highway, approximately 1 mile from Downtown Eatonton. Nearby businesses include the Putnam General Hospital, Eatonton Health & Rehabilitation, Putnam Pediatrics, Central GA Kidney Specialist, Young-Jones Dental Center, Eatonton Pediatrics, and Putnam County Middle School.

Property Highlights

Monument signage
Great for medical or professional use
High visibility

Property Details

General

  • Property Name: 121 Sparta Highway
  • Monthly Rent: $12.00 $/SF/Year
  • Property Status: Active
  • Property Type: Office
  • Sub Type: Medical
  • Class: LEASE
  • Lease Type: NNN
  • County: Putnam
  • Zoning Description: C-2
  • Lot Size: 1.00 Acres

Building

  • Building Size: 2,560 SF
  • Space Available: 2560 SF
  • Year Built: 1996
  • Construction Status: Existing

Land

  • Traffic Count: 9,080

Documents

Documents