117 Third Street, Vienna, GA 31092
For Lease
For Lease
+5
For Lease
View All 8 Photos
View All 8 Photos
Property Description
Property would be ideal for any professional office use.
Location: Located on the corner of South Third Street and East Cotton Street in downtown Vienna, across from Walter F. George Park. Neighbors include Dooly County Zoning Department, Dooly County Tax Commissioner, the Dooly County Courthouse, and many other retail and professional office sites.
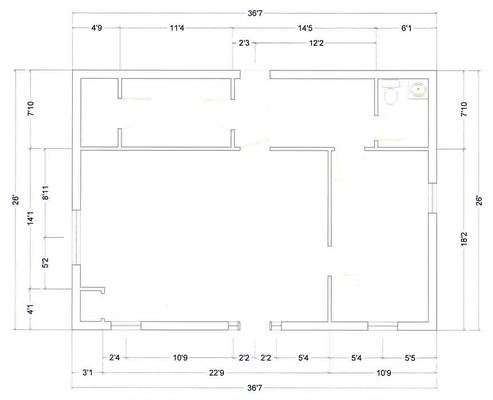
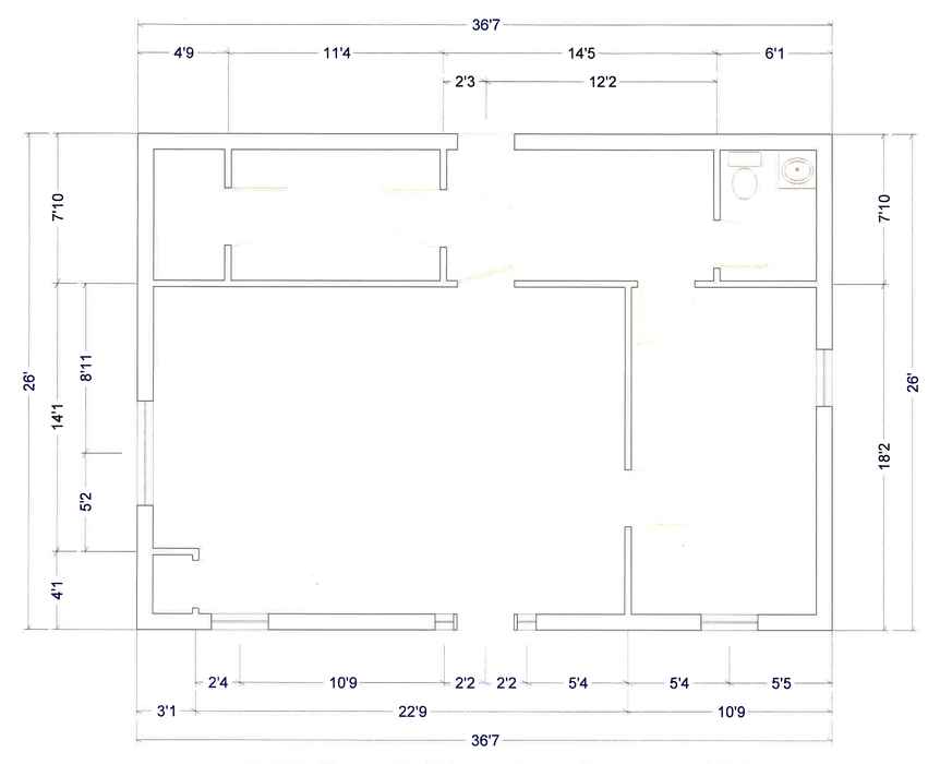
Space Details: A former financial office, the floor plan for this 951 SF building consists of a large open area, three (3) offices, and one (1) restroom. A drive-through window is also available.
Property Highlights
Property would be ideal for any professional office use
Also for sale
Property Details
General
- Property Name: 117 South Third Street
- Monthly Rent: $950.00 AMT/Month
- Property Status: Active
- Property Type: OFFICE
- Sub Type: OFFICE BUILDING
- Class: LEASE
- Lease Type: Modified Gross
- County: Dooly
- Zoning Description: C-1
- Lot Size: 0.10 Acres
Building
- Building Size: 951 SF
- Space Available: 951 SF
- Year Built: 1974
- Construction Status: Existing
Land
- Traffic Count: 8,280