117 Third Street, Vienna, GA 31092
+5
View All 8 Photos
2 Spaces Available
1,300 SF • From $20.00 $/SF/Year • NNN
Property Description
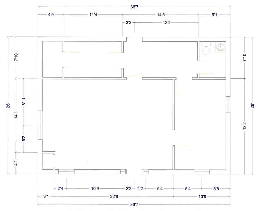
A former financial office, the floor plan for this 951 SF building consists of a large open area, three (3) offices, and one (1) restroom. A drive-through window is also available. Property would be ideal for any professional office use.
Location: Located on the corner of South Third Street and East Cotton Street in downtown Vienna, across from Walter F. George Park. Neighbors include Dooly County Zoning Department, Dooly County Tax Commissioner, the Dooly County Courthouse, and many other retail and professional office sites.
Property Highlights
Property Details
General
- Property Name: 117 South Third Street
- Price: $95,000.00
- Property Status: Active
- Property Type: OFFICE
- Sub Type: OFFICE BUILDING
- Property Use: Vacant Property
- Class: SALE OR LEASE
- Lease Type: NNN
- County: Dooly
- Zoning Description: C-1
Building
- Building Size: 951 SF
- Year Built: 1974
Land
- Traffic Count: 8,280
Documents
Available Spaces
Suite 209 (Floor 2)
AvailableThis 23,000 SF warehouse at 2351 Hubbard Road, Building B, Macon, GA offers flexible industrial space with ±300 SF of office, two dock-high doors, and a 16’ x 16’ ground-level door. With ceiling heights ranging from 24’ to 30’, the property is ideal for distribution, storage, or light manufacturing. Constructed with pre-galvanized steel panels and equipped with sprinklers, it is built for durability and safety.
Suite 210 (Floor 2)
AvailableThis 23,000 SF warehouse at 2351 Hubbard Road, Building B, Macon, GA offers flexible industrial space with ±300 SF of office, two dock-high doors, and a 16’ x 16’ ground-level door. With ceiling heights ranging from 24’ to 30’, the property is ideal for distribution, storage, or light manufacturing. Constructed with pre-galvanized steel panels and equipped with sprinklers, it is built for durability and safety.